When the company SMS-M commenced its work in the field of modular constructions, the first type buildings we started to manufacture was dormitories. The beginning of 2000s was marked by the rapid industrial growth and the accompanying construction boom. As then, so now any developer wants to optimize costs and reduce time necessary for completing a project and shorten its payback period. A modular dorm directly at the construction site immidiately solves both these problems: a construction team is located within 2 minutes from the porkplace and, consequently, there is no more need to pay housing rent and daily transport of employees.
Such prefabricated buildings are used not only in the construction field. For instance, once we participated in building facilities for temporary resettlement of people in the area of natural disasters. Also once we produced the block modules hostels to accommodate illegal immigrants.
SMS-M modular dorms are time-tested and meet all sanitary standards, in particular, SanPiN 4719-88. The buildings' frame is light and durable and ensures the bearing capacity of the structure in accordance with the current construction regulations and norms.
From 14900 rub./sq.m
per a dorm
Standard modular dormitory
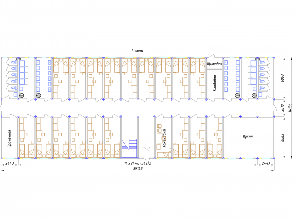
Our company offers construction of modular dormitories on a turnkey basis. Applying our experience, we can always help the customer to accurately select the desired layout depending on the number of placed persons. We have ready-made solutions to accommodate your employees - from 20 to 1000 people. A standard modular dormitory typically includes:
- bedrooms for 2, 3 or 4 (depending on the chosen beds);
- WC;
- shower room;
- kitchen;
- canteen;
- laundry;
- administration and staff room;
- room for cleaning equipment;
- switchboard;
- living room.
The designer fantasy can combine these facilities within a single building in totally different ways. Here are a few options (capacity is specified for 4 bunk beds per room):
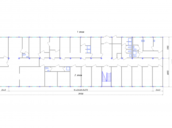
Capacity - 40 persons. Area - 415m2.
Capacity - 56 persons. Area - 428m2.
Capacity - 100 persons. Area - 640m2.
Capacity - 150 persons. Area - 940m2.
Capacity - 240 persons. Area - 1656m2.
Capacity - 300 persons. Area - 1920m2.
Depending on the customer's wishes several options are available for finishing the dormitory premises. In any case, the result will fulfill all your expectations and demands. To verify this, we suggest you to look through the dorm projects we have already implemented. We really create a cozy and comfortable environment for your staff to live and work!
see also:
Our advantages
It does not matter a lot what type of dorm you choose at the end of the day, repid order schedule and high quality of our products remain constant. Our modules are not always the cheapest ones and there are reasons for that. Thanks to the well thought-out and well-designed structure they ensure a tight seal joints that protects the building from leaks and purging. Hydro and thermal insulation of our modular dormitories are made at the highest level. From our own experience and from feedback from our customers, we know that not all cabins are the same in this aspect, and the majority of structures, particularly those which have low prices, sometimes bring a lot of problems during the operation. Do not skimp on quality - purchase time-tested modular dormitories from the company SMS-M.
Related projects

лето 2008







































